Ein schwierig geschnittenes Grundstück, ein schwebend unwirksamer Bebauungsplan und der Wunsch nach einer möglichst wirtschaftlichen Ausnutzung der Parzelle – das waren die Voraussetzungen für dieses Bauprojekt in Telgte bei Münster.
Die Ausgangslage
Ein schwierig geschnittenes Grundstück, ein schwebend unwirksamer Bebauungsplan und der Wunsch nach einer möglichst wirtschaftlichen Ausnutzung der Parzelle – das waren die Voraussetzungen für dieses interessante Neubauprojekt in Telgte bei Münster.
Das Konzept
Das giebelständige Langhaus folgt der Tiefe des Baugrundstücks und öffnet sich seitlich zu den Gärten der Erdgeschosswohnungen. In seiner äußeren Gestalt und mit seinen markanten Unterstellplätzen nimmt das Gebäude formale Anleihen bei den typischen westfälischen Bauernhäusern.
Einbindung in die Umgebung
Trotz seiner Länge von mehr als 33 Metern fügt es sich in die eher kleinteilige Umgebungsbebauung ein. Hierzu tragen niedrige Traufen, fassadenbündige Dachabschlüsse, die natur-roten Hohlfalzziegel und nicht zuletzt die sandsteinfarbene Klinkerfassade bei. Als Rückseitensortierung im Dünnformat verleiht der Verblender dem Haus einen rustikalen – aber feinen Charakter.
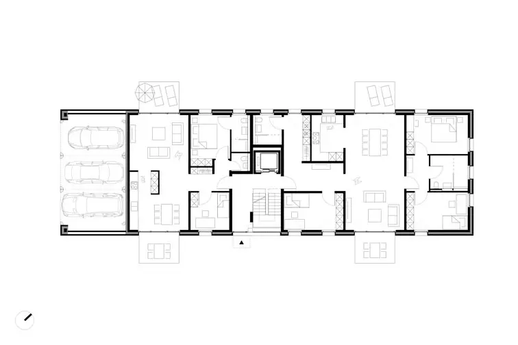
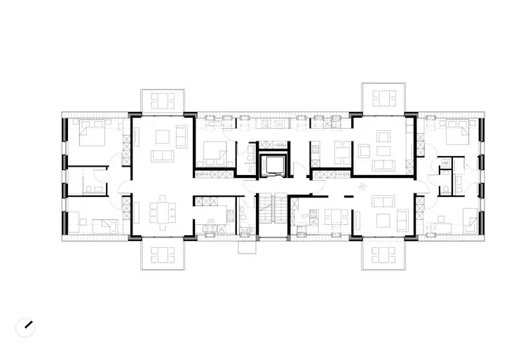
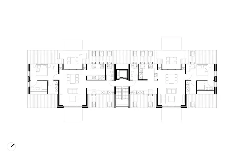
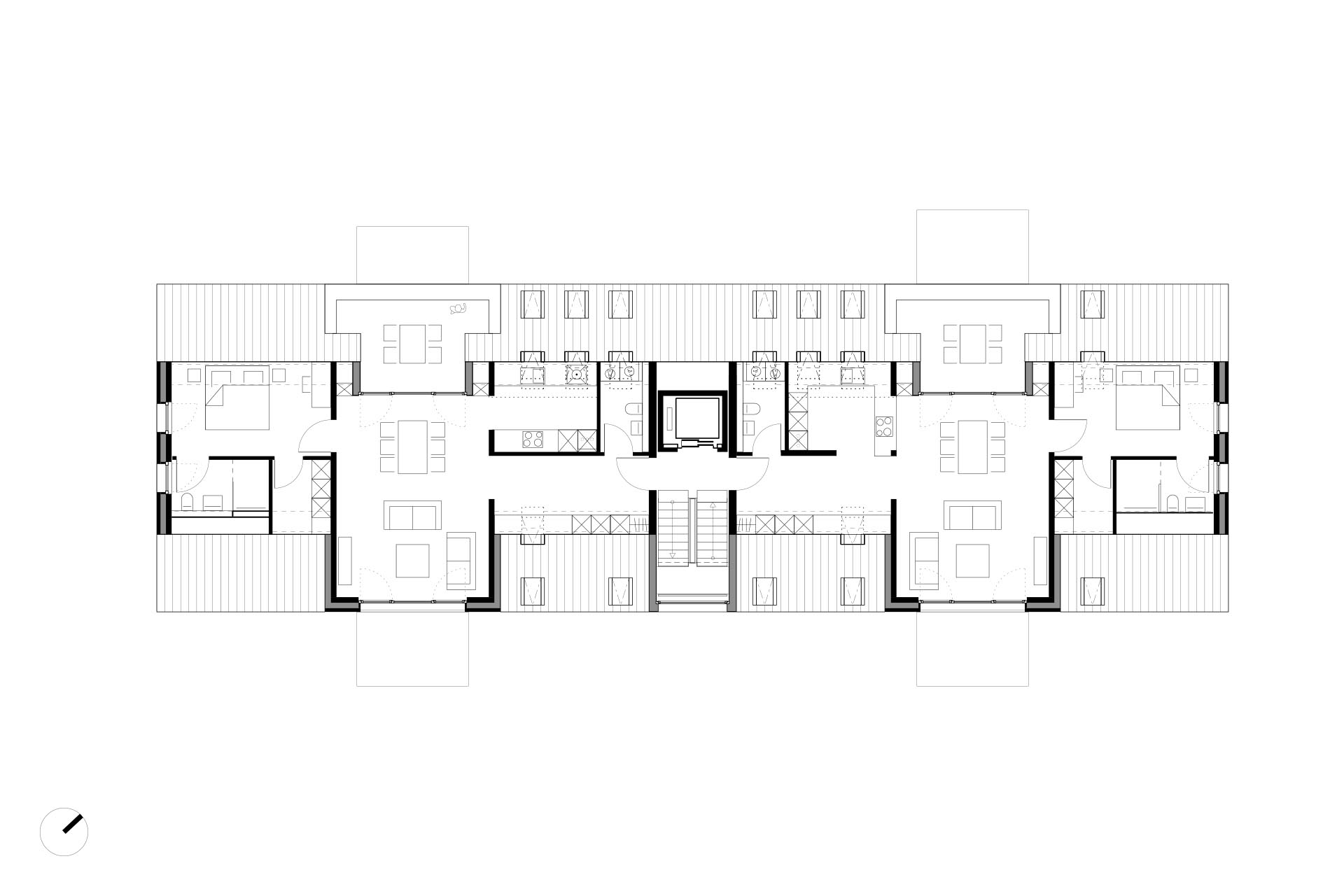
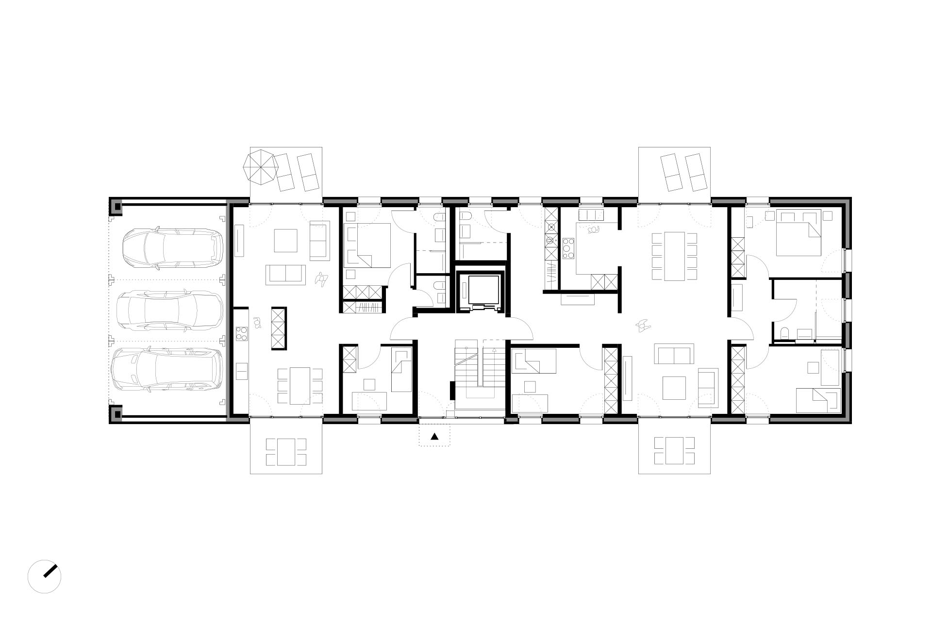
Das Grundrisslayout
Im schmalen Baukörper erstrecken sich die Wohn-Essbereiche von Südost nach Nordwest. So ermöglichen sie eine ganztägige Durchsonnung. Sie dienen als Verteiler zu den giebelseitig angrenzenden Schlafräumen und Bädern. Raumhohe Fenster, große Balkone und Terrassen erweitern die zentralen Wohnräume nach außen. Zweigeschossige Zwerchhäuser bilden zusätzlichen Raum in den Dachgeschossen; zudem betonen sie die Lage der Wohnräume innerhalb des Hauses.
Die technische Ausstattung
Wegen der hohen Nachfrage nach Geschosswohnungen für ältere Paare verfügt das Gebäude über eine barrierefreie Ausstattung mit rollstuhlgerechtem Personenaufzug. Eine Besonderheit sind dezentrale Anlagen zur kontrollierten Wohnraumlüftung mit Wärmerückgewinnung, deren Ein- und Auslässe seitlich in die Verblender-Laibungen – fast unsichtbar – integriert sind. Solarthermiekollektoren finden sich – ebenfalls nicht sichtbar – auf den großen Zwerchhäusern.




Zahlen, Daten, Fakten
Architekt Stefan Unnewehr, Telgte
Bauherr DiePlusMakler GmbH, Lengerich
Tragwerksplanung Prof. Dr.-Ing. L. Strathmann, Ingenieurgesellschaft mbH, Telgte; Ingenieurbüro Decker, Telgte
Schallschutznachweis Ingenieurbüro Decker, Telgte
Architekturfotografie, Produktfotos Stefan Unnewehr, Telgte
Entwurf und Herstellung der Untersetzer Hajnal Mankau-Szakos, Dresden
Laufzeit 2013-2016













